cropped-mimarlik-logo-11.jpgcropped-mimarlik-logo-11.jpgcropped-mimarlik-logo-11.jpgcropped-mimarlik-logo-11.jpg
  • Anasayfa
  • Projelerimiz
  • Hakkımızda
  • Ekibimiz
  • İletişim
✕
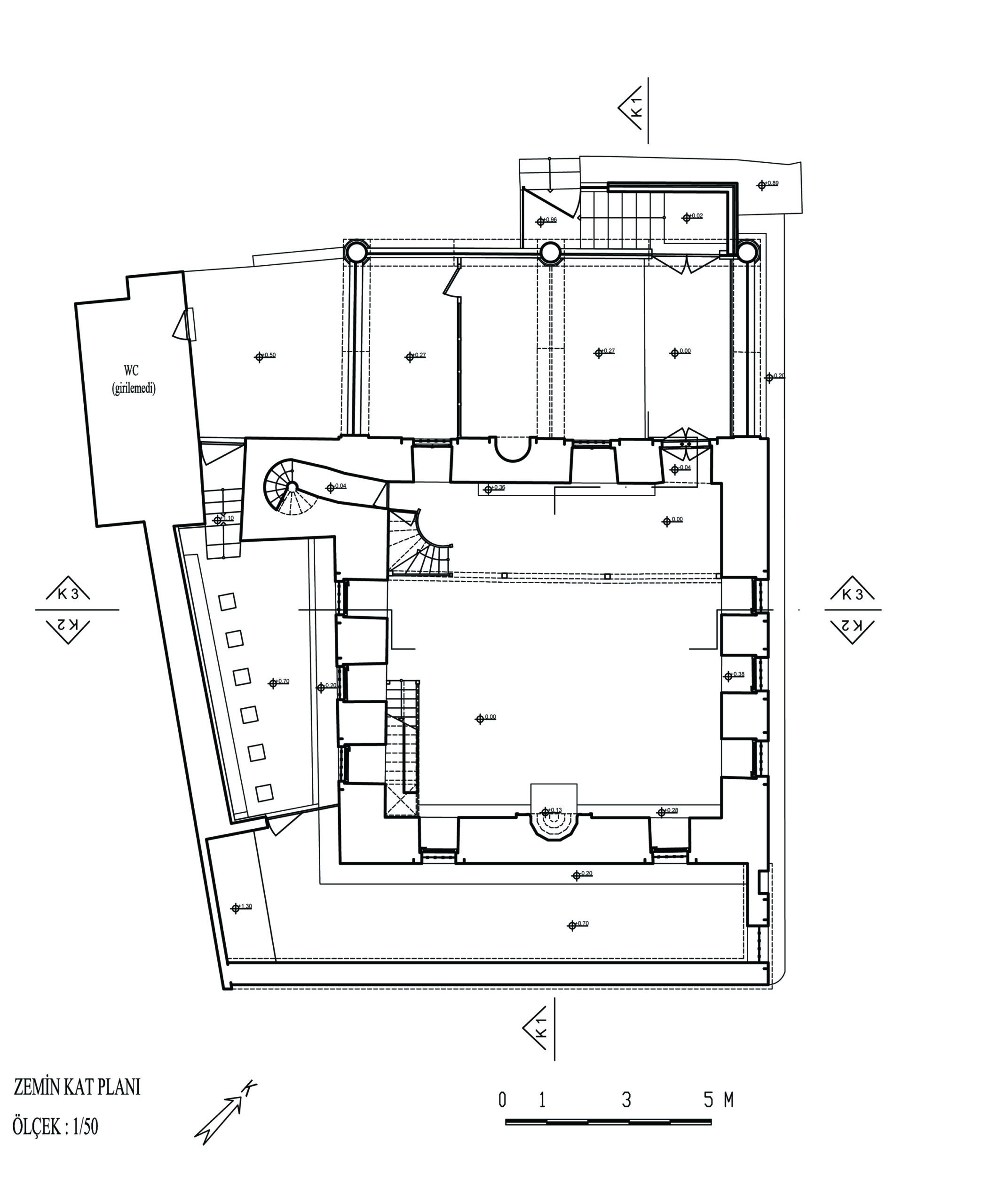
Winkelhofer Evi Rölövesi I Beyoğlu I İstanbul
Şubat 22, 2026
YouthStore Mağazası I Konsept Proje
Şubat 22, 2026
YouthStore Mağazası I Konsept Proje
Şubat 22, 2026
Winkelhofer Evi Rölövesi I Beyoğlu I İstanbul
Şubat 22, 2026



Share

Related posts

Şubat 22, 2026

Winkelhofer Evi Rölövesi I Beyoğlu I İstanbul


Read more
Şubat 22, 2026

Perfect New World


Read more
Şubat 22, 2026

Payas Külliye I Hatay


Read more